Lagepläne D-Linie
- Verlauf Linie 10
- Ahlem–Hbf. (Marienstr.–Expo/Ost)
- Tunnelstationen (gepl.)
- 7
- Tunnellänge (City)
- 3,15 km
Die D-Linie ist der letzte Baustein im Stadtbahnnetz. Der vierte geplante Tunnel in der Innen- und Südstadt verläuft zwischen den Rampen in der Goethestraße bis zur Lindemannallee und stellt den Brückenschlag zwischen den heutigen Linien 10 im Westen und 6 im Südosten dar. Die Leitfarbe dieses Astes ist grün. Die hier gezeigten Pläne stellen die Baustufen 1 (Goetheplatz bis Hbf.) und 2 (Hbf. bis Marienstr.) dar. Ergänzend finden Sie dazu den Erläuterungsbericht von 1992. Pläne der Baustufe 3 (Marienstr. bis Lindemannallee) stammen aus dem Zeitraum 1992 bis 1994 und sind bis zu Vorabzügen vorhanden.
Verfügbare Pläne D-Linie
Plannummer | Art | Inhalt (DR= Druck, LP=Lichtpause) | Datum (veröff./letztes) | Scan |
---|---|---|---|---|
D 2b | Querschnitt | Querschnitt Unterfahrung Kaufhaus Hertie (LP) | 07.05.1992 | Download |
D 205/113 | Lageplan | Marienstraße (DR) | 21.02.1992 | Download |
D 205/203 | Längsschnitt | Marienstraße (DR) | 21.02.1992 | Download |
D 206/129 | Lageplan | Königstraße (DR) | 19.02.1982 | Download |
D 206/215 | Längsschnitt | Königstraße (DR) | 19.02.1982 | Download |
D 207/121 | Lageplan | Ostkopf Station Hauptbahnhof (LP), zu D2b | 27.03.1974 | Download |
D 207/201 | Längsschnitt | Ostkopf Station Hauptbahnhof (LP) | 27.03.1974 | Download |
D 207/134 | Lageplan | Hauptbahnhof (komplett, –2-Ebene) (DR) | 21.02.1992 | Download |
D 207/135a | Lageplan | Hauptbahnhof Passerelle (DR) | 15.04.1992 | Download |
D 207/136 | Lageplan | Hauptbahnhof (D, –3-Ebene) (DR) | 21.02.1992 | Download |
D 207/206 | Längsschnitt | Hauptbahnhof (DR) | 21.02.1992 | Download |
D 207a/107 | Lageplan | Steintor und Hbf.-Unterfahrung (DR) | 19.02.1992 | Download |
D 207a/203 | Längsschnitt | Steintor und Hbf.-Unterfahrung (DR) | 19.02.1992 | Download |
D 208/124 | Lageplan | Goetheplatz und Rampe Goethestr. (DR) | 12.02.1992 | Download |
D 208/214 | Längsschnitt | Goetheplatz und Rampe Goethestr. (DR) | 12.02.1992 | Download |
Legende | Lagepläne und Längsschnitte | Zeichenerklärung | Download | |
Übersichtsplan | Lageplan | Geplantes Stadtbahnnetz Hannover (Planungsstand 1992) | 1992 | Download |
Bericht | Erläuterungsbericht (Vorentwurf) | Fotokopie | 26.05.1992 | Download |

Querschnitt Unterfahrung Kaufhaus Hertie
Entwurfszeichnung für die Unterfahrung im Bereich des Gebäudes Raschplatz 6 (ehemals Kaufhaus Hertie, heute Cinemaxx), Zeichnungsnummer D 2b vom 07.05.1992. Maßstab 1:200. Blattgröße 81 × 29 cm.
U-Bahn-Bauamt der Landeshauptstadt Hannover, Techn. Abteilung 691, 1992.
Querschnitt Unterfahrung Kaufhaus Hertie, D 2b

Lageplan Marienstraße, D 205/113
Lageplan der U-Station Marienstraße, Zeichnungsnummer D 205/113 vom 21.02.1992. Maßstab 1:1000. Blattgröße 95 × 30 cm.
U-Bahn-Bauamt der Landeshauptstadt Hannover, Planungsabteilung 69.1, 1992.
Lageplan Marienstraße, D 205/113

Längsschnitt Marienstraße, D 205/203
Längsschnitt der U-Station Marienstraße, Zeichnungsnummer D 205/203 vom 21.02.1992. Maßstab 1:1000. Blattgröße 132 × 42 cm.
U-Bahn-Bauamt der Landeshauptstadt Hannover, Planungsabteilung 69.1, 1992.
Längsschnitt Marienstraße, D 205/203

Lageplan Königstraße, D 206/129
Lageplan der U-Station Königstraße, Zeichnungsnummer D 206/129 vom 19.02.1992. Maßstab 1:1000. Blattgröße 79,5 × 30 cm.
U-Bahn-Bauamt der Landeshauptstadt Hannover, Planungsabteilung 69.1, 1992.
Lageplan Königstraße, D 206/129

Längsschnitt Königstraße, D 206/215
Längsschnitt der U-Station Königstraße, Zeichnungsnummer D 206/215 vom 19.02.1992. Maßstab 1:1000. Blattgröße 132 × 42 cm.
U-Bahn-Bauamt der Landeshauptstadt Hannover, Planungsabteilung 69.1, 1992.
Längsschnitt Königstraße, D 206/215

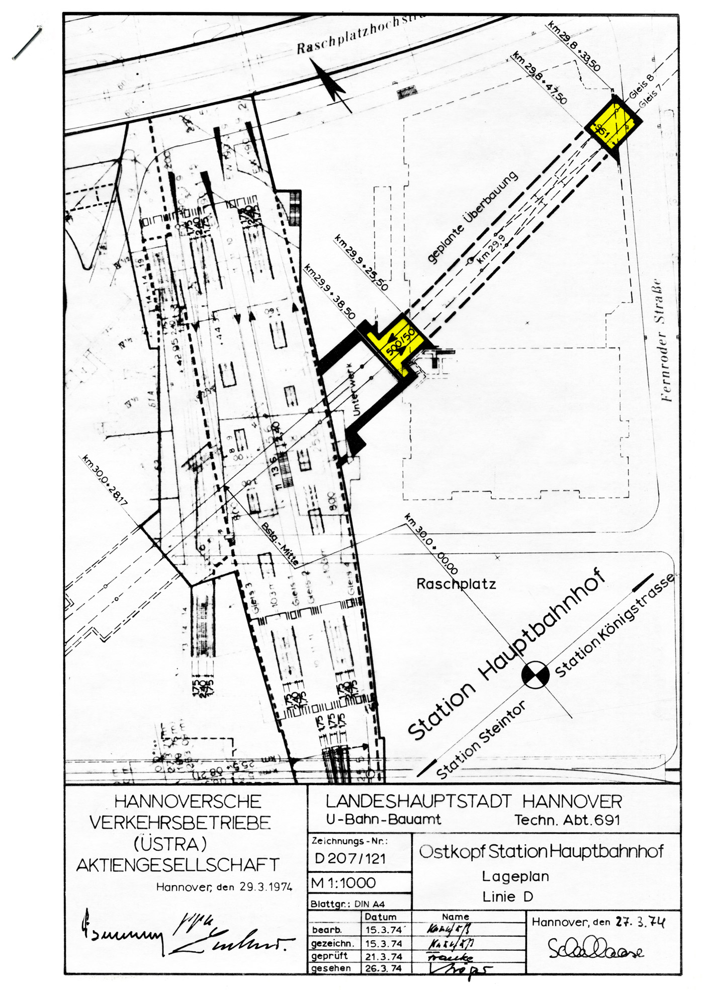
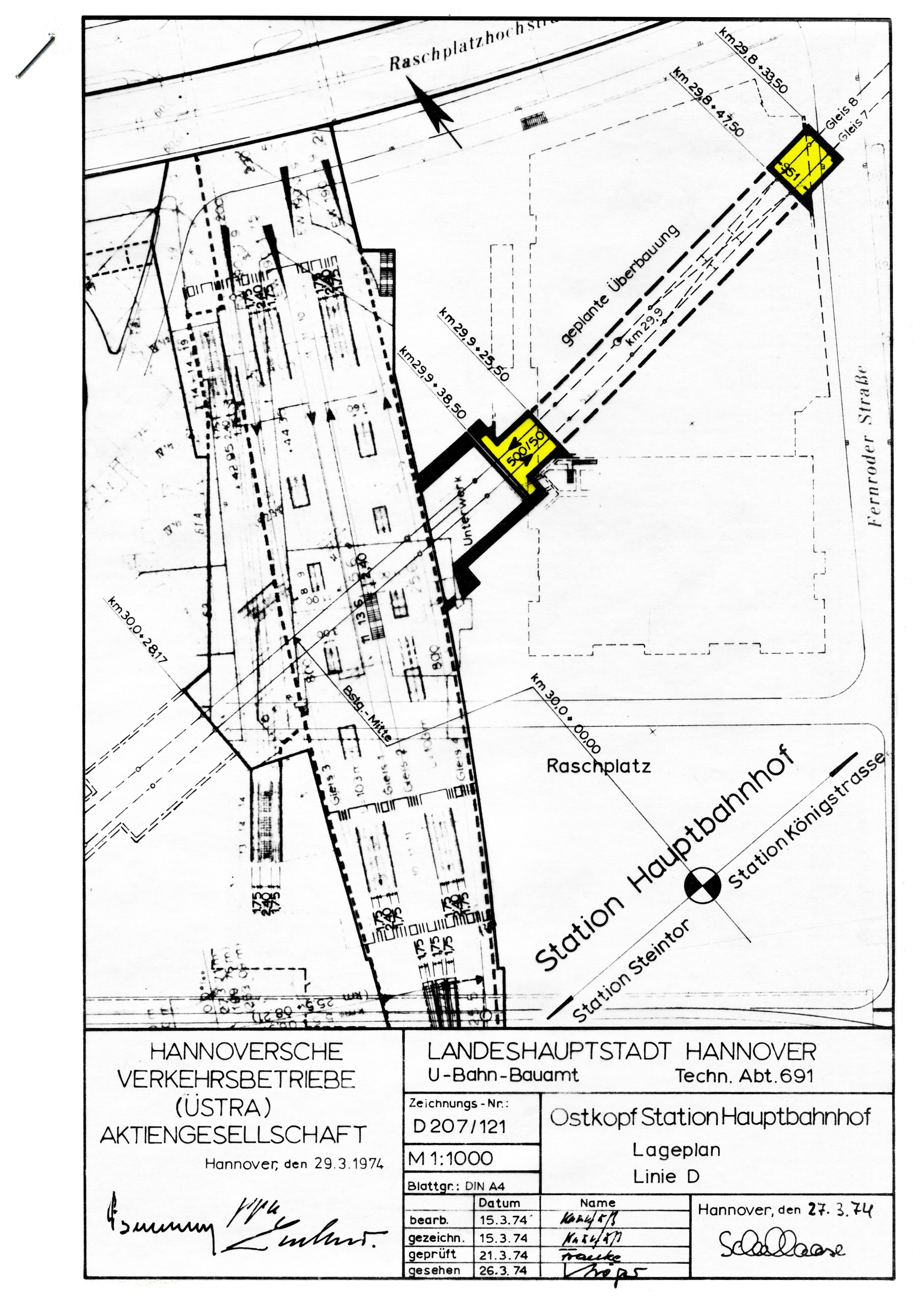
Lageplan Ostkopf Station Hauptbahnhof, D 207/121
Lageplan der Tunnel-Teilstücke unter dem Gebäude Raschplatz 6 (ehemals Kaufhaus Hertie, heute Cinemaxx), Zeichnungsnummer D 207/121 vom 27.03.1974. Maßstab 1:1000. Blattgröße 29,7 × 21 cm.
U-Bahn-Bauamt der Landeshauptstadt Hannover, Techn. Abteilung 691, 1974.
Lageplan Ostkopf Station Hauptbahnhof, D 207/121
- d-207-121-ostkopf-hbf-001-web.jpg (548,9 KiB)
- d-207-121-ostkopf-hbf-001.jpg (2,5 MiB)
- d-207-121-ostkopf-hbf-002-web.jpg (633,1 KiB)
- d-207-121-ostkopf-hbf-002.jpg (1,4 MiB)
- d-207-121-ostkopf-hbf-003-web.jpg (676,6 KiB)
- d-207-121-ostkopf-hbf-003.jpg (1,5 MiB)
- d-207-121-ostkopf-hbf-004-web.jpg (311,0 KiB)
- d-207-121-ostkopf-hbf-004.jpg (790,0 KiB)

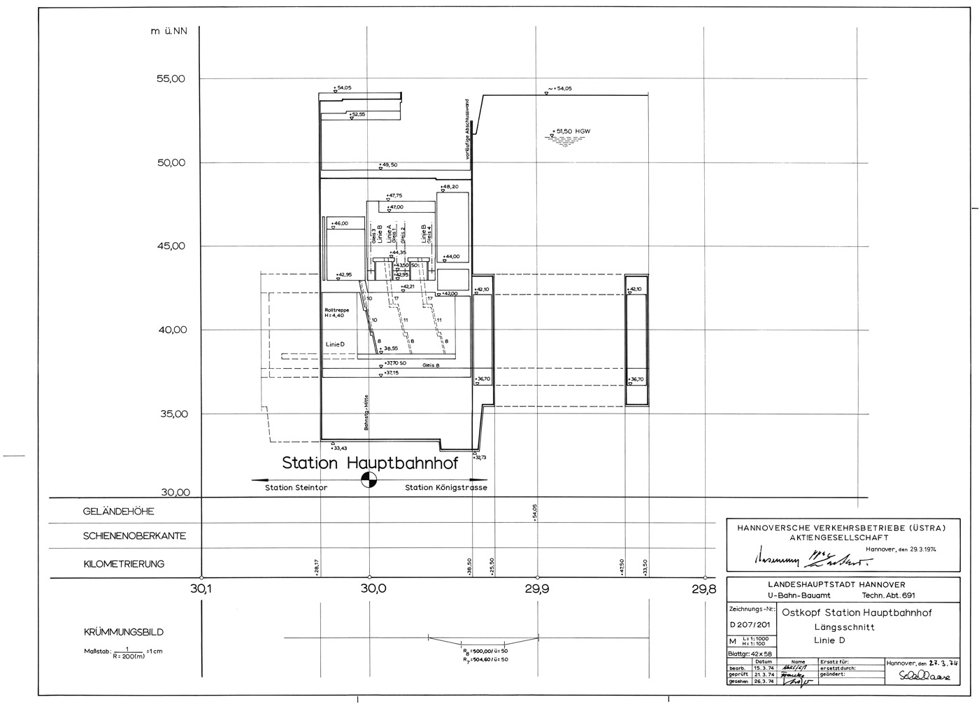
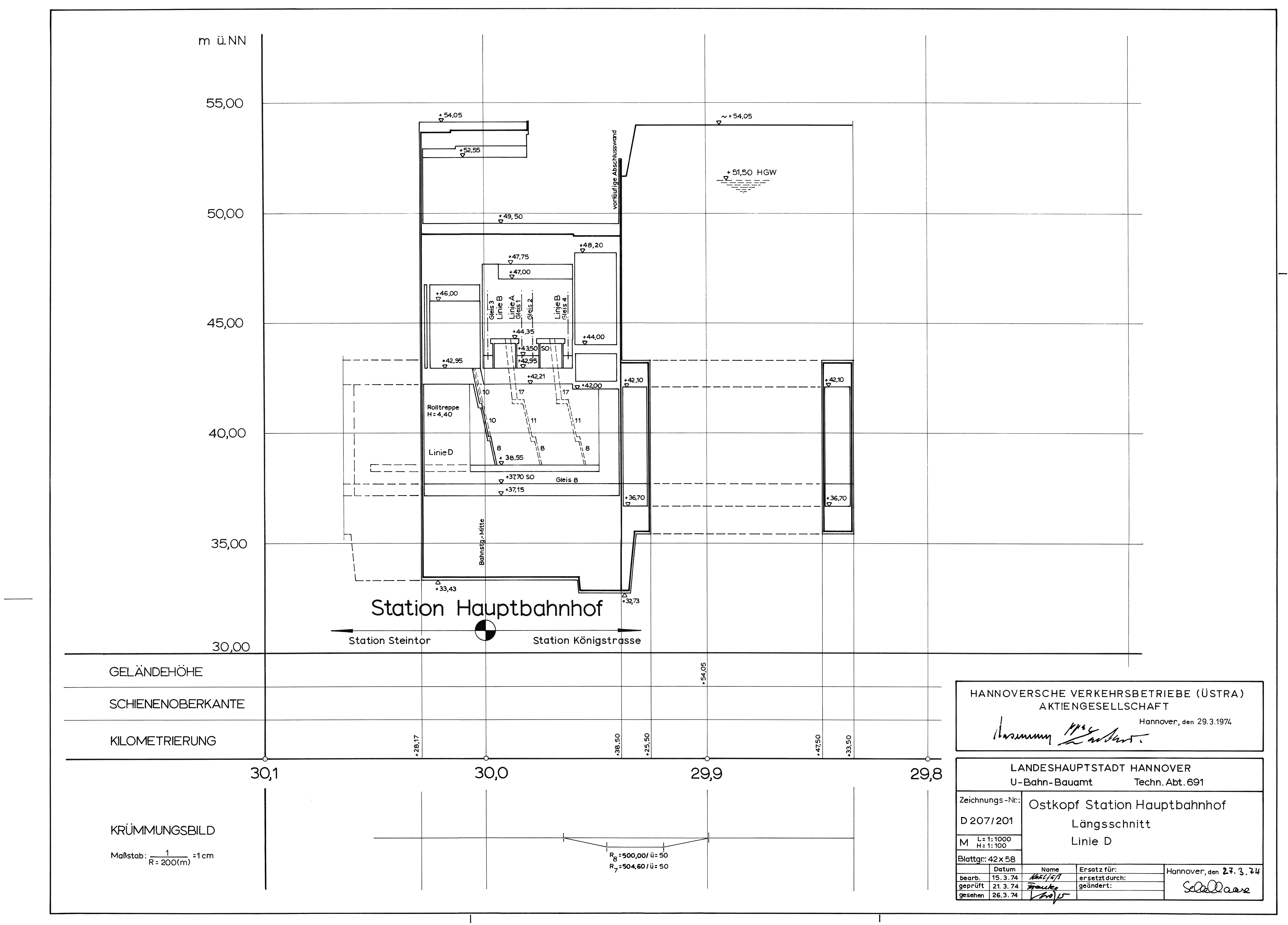
Längsschnitt Ostkopf Hauptbahnhof, D 207/201
Längsschnitt der U-Station Hauptbahnhof mit Tunnel-Teilstücken unter dem Gebäude Raschplatz 6 (ehemals Kaufhaus Hertie, heute Cinemaxx), Zeichnungsnummer D 207/206 vom 27.03.1974. Maßstab 1:1000. Blattgröße 58 × 42 cm.
U-Bahn-Bauamt der Landeshauptstadt Hannover, Planungsabteilung 69.1, 1974.
Längsschnitt Ostkopf Hauptbahnhof, D 207/201

Lageplan Hauptbahnhof (komplett, –2-Ebene), D 207/134
Lageplan der U-Station Hauptbahnhof in der Bahnsteigebene –2 (A/B) mit unterlagerter D-Linie –3, Zeichnungsnummer D 207/134 vom 21.02.1992. Maßstab 1:1000. Blattgröße 58 × 30 cm.
U-Bahn-Bauamt der Landeshauptstadt Hannover, Planungsabteilung 69.1, 1992.
Lageplan Hauptbahnhof (komplett, –2-Ebene), D 207/134

Lageplan Hauptbahnhof Passerelle, D 207/135a
Lageplan der U-Station Hauptbahnhof in der Passerellenebene –1, Zeichnungsnummer D 207/135a vom 15.04.1992. Maßstab 1:1000. Blattgröße 42 × 29,7 cm.
U-Bahn-Bauamt der Landeshauptstadt Hannover, Planungsabteilung 69.1, 1992.
Lageplan Hauptbahnhof Passerelle, D 207/135a

Lageplan Hauptbahnhof (D, –3-Ebene), D 207/136
Lageplan der U-Station Hauptbahnhof in der Bahnsteigebene –3 (D), Zeichnungsnummer D 207/136 vom 21.02.1992. Maßstab 1:1000. Blattgröße 58 × 30 cm.
U-Bahn-Bauamt der Landeshauptstadt Hannover, Planungsabteilung 69.1, 1992.
Lageplan Hauptbahnhof (D, –3-Ebene), D 207/136

Längsschnitt Hauptbahnhof, D 207/206
Längsschnitt der U-Station Hauptbahnhof, Zeichnungsnummer D 207/206 vom 21.02.1992. Maßstab 1:1000. Blattgröße 95 × 42 cm.
U-Bahn-Bauamt der Landeshauptstadt Hannover, Planungsabteilung 69.1, 1992.
Längsschnitt Hauptbahnhof, D 207/206

Lageplan Steintor und Hbf.-Unterfahrung, D 207a/107
Lageplan der U-Station Steintor und der Tunnel-Unterfahrung Hbf., Zeichnungsnummer D 207a/107 vom 19.02.1992. Maßstab 1:1000. Blattgröße 95 × 30 cm.
U-Bahn-Bauamt der Landeshauptstadt Hannover, Planungsabteilung 69.1, 1992.
Lageplan Steintor und Hbf.-Unterfahrung, D 207a/107

Längsschnitt Steintor und Hbf.-Unterfahrung, D 207a/203
Längsschnitt der U-Station Steintor und der Tunnel-Unterfahrung Hbf., Zeichnungsnummer D 207a/203 vom 19.02.1992. Maßstab 1:1000. Blattgröße 132 × 42 cm.
U-Bahn-Bauamt der Landeshauptstadt Hannover, Planungsabteilung 69.1, 1992.
Längsschnitt Steintor und Hbf.-Unterfahrung, D 207a/203

Lageplan Goetheplatz und Rampe Goethestr., D 208/124
Lageplan der Station Goetheplatz und Rampe Goethestraße, Zeichnungsnummer D 208/124 vom 12.02.1992. Maßstab 1:1000. Blattgröße 95 × 30 cm.
U-Bahn-Bauamt der Landeshauptstadt Hannover, Planungsabteilung 69.1, 1992.
Lageplan Goetheplatz und Rampe Goethestr., D 208/124

Längsschnitt Goetheplatz und Rampe Goethestr., D 208/214
Längsschnitt der Station Goetheplatz und Rampe Goethestraße, Zeichnungsnummer D 208/214 vom 12.02.1992. Maßstab 1:1000. Blattgröße 95 × 42 cm.
U-Bahn-Bauamt der Landeshauptstadt Hannover, Planungsabteilung 69.1, 1992.
Längsschnitt Goetheplatz und Rampe Goethestr., D 208/214

Legende Lagepläne und Längsschnitte
Zeichen- und Farberklärung zu den Lageplänen und Längsschnitten.
Legende Lagepläne und Längsschnitte

Geplantes Stadtbahnnetz Hannover (Planungsstand 1992)
Geplantes Stadtbahnnetz Hannover (Planungsstand 1992). Diese Karte erschien auf Grundlage der Stadtkarte 1:10.000 durch die Jahre in mehreren Versionen, jeweils nach Planungsständen und Varianten des Stadtbahnnetzes Hannover. Diese Karte stellt die bislang letzte Variante dar mit dem D-Tunnel in seinen Ausbaustufe 1 bis 3 vom Gotheplatz bis zur Lindemannallee (Variante 6.2 in den Bewertungen und Vorlagen). Maßstab 1:10.000. Blattgröße 91,5 × 74,5 cm.
U-Bahn-Bauamt der Landeshauptstadt Hannover, 1992.
Geplantes Stadtbahnnetz Hannover (Planungsstand 1992)

Erläuterungsbericht zur Planfeststellung für die Stadtbahnlinie D
Vorentwurf (Fotokopien und Lichtpausen) des Erläuterungsberichts zur Planfeststellung für die Stadtbahnlinie D vom 29.10.1992. Dies ist der fast vollständige Erläuterungsbericht zum geplanten D-Tunnel in der 1. und 2. Baustufe vom Goetheplatz über Hauptbahnhof bis zur Marienstraße. Die Unterlagen waren als Vorentwurf Bestandteil des Planfeststellungsverfahrens. Hinweis: Kapitel 8 (Grundstückseingriffe und Eigentümerverzeichnis) wurde aus Datenschutzgründen nicht verarbeitet, ansonsten ist der Bericht vollständig und in seiner Reihenfolge abgebildet.
DIN A4-Fotokopien sowie diverse großformatige Lagepläne und Längsschnitte. U-Bahn-Bauamt der Landeshauptstadt Hannover, 1992.